Me contacter

Optimisation des plans d’une maison à construire,
à proximité d’Annecy (74)


Le projet en quelques mots :

Optimisation des plans d’architecte avant dépôt du permis de construire, afin de tirer le meilleur parti des volumes et d’assurer un nouveau cadre de vie confortable, fonctionnel et convivial.

Pour qui ?

Un jeune couple de trentenaires sur le point de faire construire leur maison sur un terrain près d’Alby-sur-Chéran (30 min d’Annecy).

Les envies : 

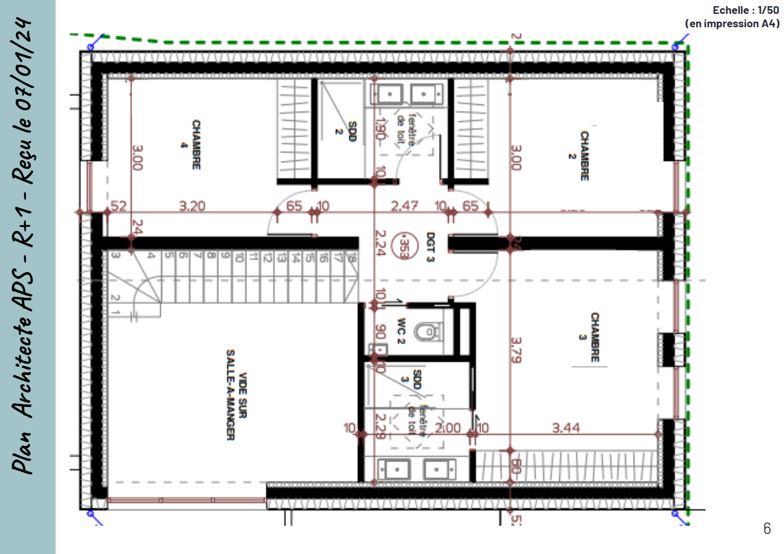
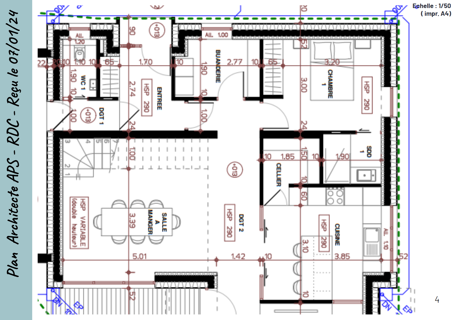
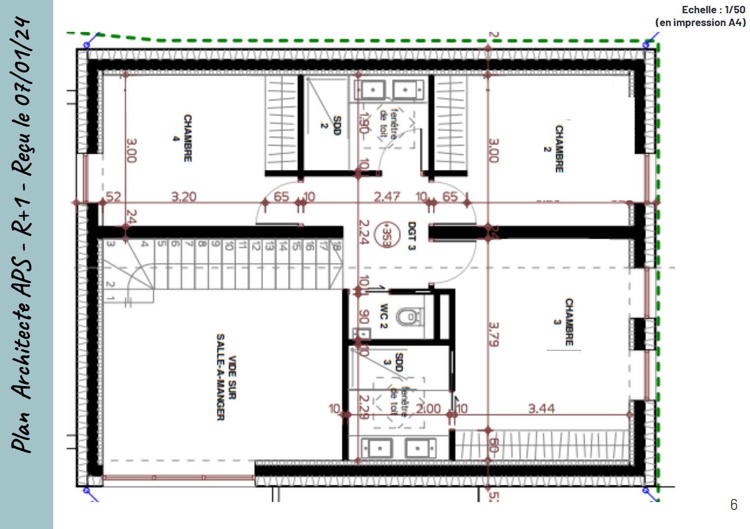
Une maison contemporaine, lumineuse et chaleureuse, un salon avec toit cathédrale, une salle à manger spacieuse, une cuisine indépendante et un grand cellier. L’étage, initialement proposé avec 3 chambres et 2 salles de bain, nécessitait d’être repensé pour intégrer une suite parentale spacieuse et fonctionnelle avec dressing et salle de douche privative. 

Le challenge :

Les plans ayant déjà été largement travaillés entre les clients et leur architecte, la marge de manœuvre pour repenser l’agencement intérieur était limitée. L’objectif : proposer des aménagements pertinents, répondant pleinement aux attentes des clients, sans tout remettre à plat, en respectant les délais serrés liés au dépôt du permis de construire.

La mission : revue de plans et étude des possibilités d’agencement et
d’aménagement intérieur (2 à 3 propositions par niveau).

Un accompagnement sur mesure pour un projet de construction à proximité d’Annecy optimisé,
alliant ergonomie, clarté et confort de vie.



Paramètres de confidentialité
Nous utilisons des cookies pour améliorer votre expérience lors de l'utilisation de notre site web. Si vous utilisez nos services via un navigateur, vous pouvez restreindre, bloquer ou supprimer les cookies par le biais des paramètres de votre navigateur web. Nous utilisons également du contenu et des scripts de tiers qui peuvent utiliser des technologies de suivi. Vous pouvez donner votre consentement de manière sélective ci-dessous pour autoriser ces incorporations de tiers. Pour des informations complètes sur les cookies que nous utilisons, les données que nous collectons et la manière dont nous les traitons, veuillez consulter notre Politique de confidentialité.
Youtube
Consentement à l'affichage du contenu de - Youtube
Vimeo
Consentement à l'affichage du contenu de - Vimeo
Google Maps
Consentement à l'affichage du contenu de - Google
Spotify
Consentement à l'affichage du contenu de - Spotify
Sound Cloud
Consentement à l'affichage du contenu de - Sound
Me contacter