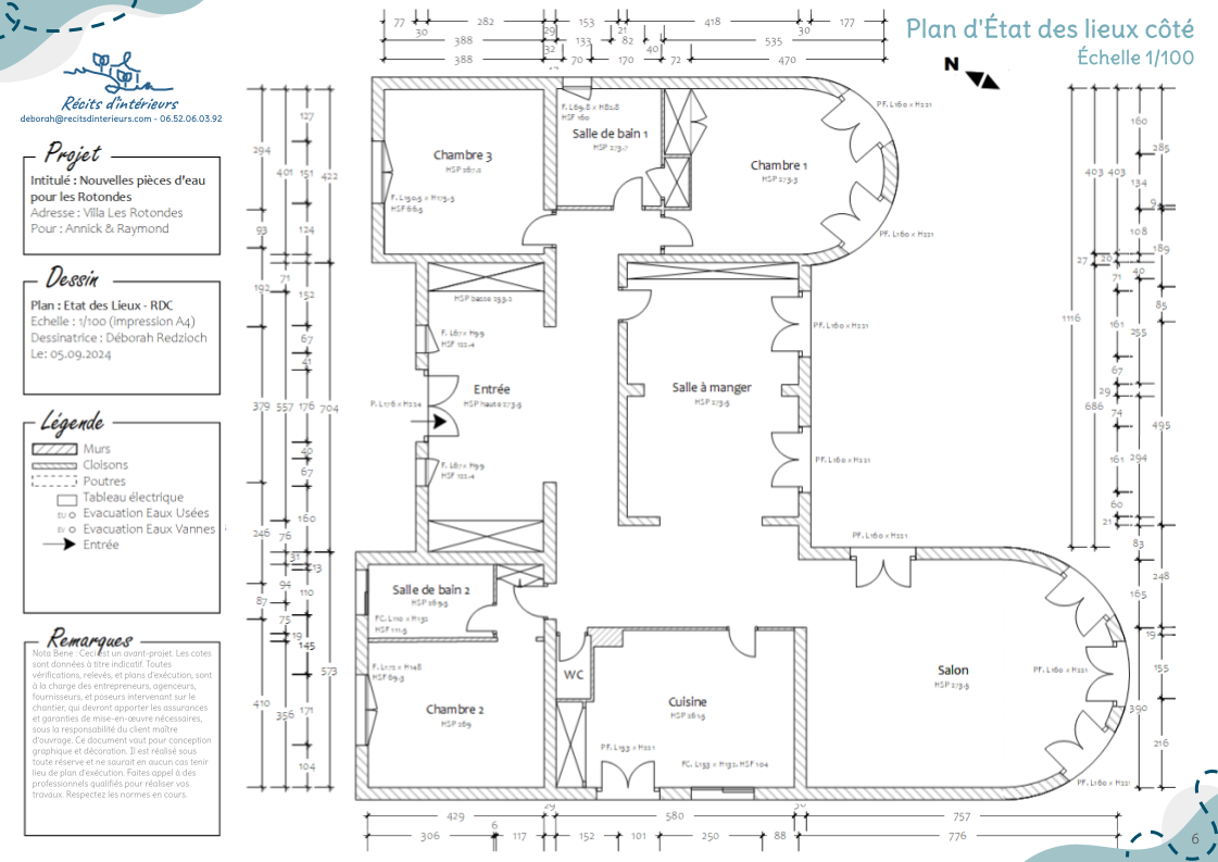
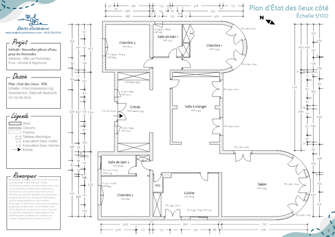
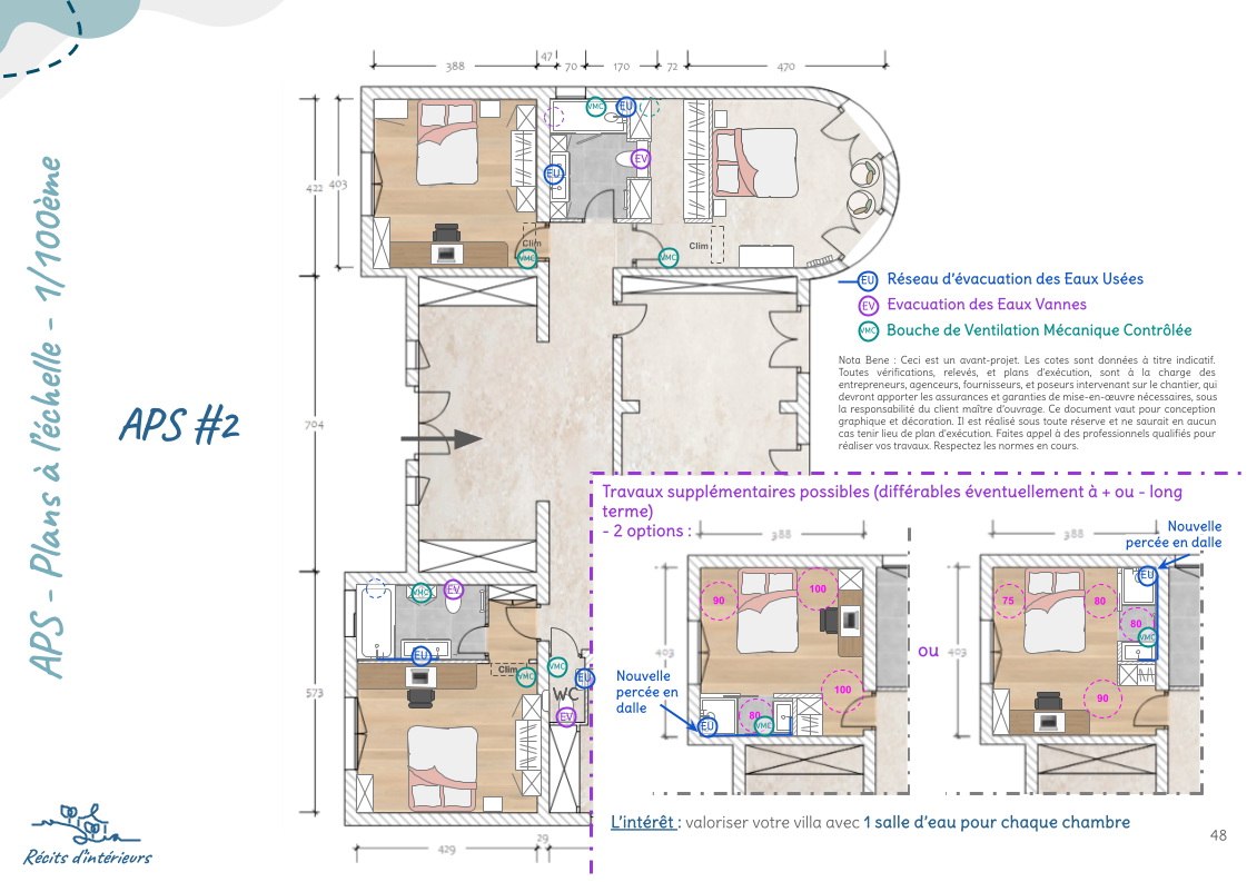
Réorganisation de l’espace nuit d’une villa de plain-pied de 180 m² : création d’une suite parentale, rénovation et réattribution des salles de bain et salles de douche de la maison. Objectif : moderniser, structurer et révéler le potentiel de la maison.
Un couple de jeunes retraités, installés depuis plusieurs années dans cette villa et souhaitant préparer la revente de leur bien.

Créer un espace nuit plus fonctionnel, avec une salle d’eau supplémentaire et un dressing, tout en conservant la belle sensation d’espace qui fait le charme de la maison.
Trouver le juste équilibre entre praticité et esthétisme, sans alourdir la configuration existante. Chaque modification devait améliorer la lisibilité des lieux sans nuire à leur générosité.
Une rénovation d’intérieur pertinente et élégante à Mouans-Sartoux, orchestrée par Récits d’intérieurs.
Vous souhaitez rénover ou optimiser votre logement ? Vous avez un projet de construction ou d’achat en neuf et souhaitez des conseils pour aménager au mieux ces nouveaux volumes ?
Je vous propose d’en discuter lors d’un entretien découverte gratuit de 30 minutes :
Nous échangeons sur vos besoins et aspirations.
Je vous présente la formule la plus adaptée à votre situation.

75 rue du Coteau
74800 La Roche-sur-Foron
© Depuis 2006 KAREDESS - Création de sites internet à Annecy

