Réagencement et rafraichissement de la cuisine d’une maison familiale, dans une logique de rénovation raisonnée. L’objectif : moderniser sans tout casser, en optimisant les aménagements existants pour apporter confort d’usage et praticité dans cette cuisine familiale.
Un couple de retraités souhaitant rénover sa cuisine et profiter pour quelques années d’un nouvel agencement fonctionnel, astucieux, design et agréable à vivre, avant d’envisager la revente de la maison.

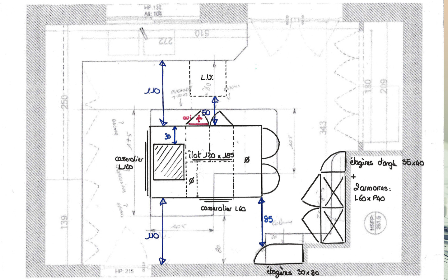
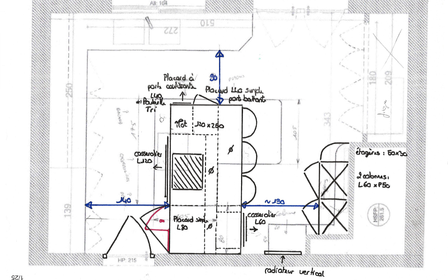
Rénover cette cuisine dans une logique économique et responsable : conserver au maximum les caissons et équipements fonctionnels, remplacer les éléments défectueux, changer les façades, plans de travail et faïences, et intégrer un îlot central convivial.
Repenser l’implantation de cette cuisine tout en limitant les restructurations lourdes, pour rester dans un budget cohérent avec leur logique d’investissement et valoriser la qualité perçue de la maison.
Un projet d’optimisation d’espace et de rénovation légère, pensé pour valoriser
la maison en vue de sa revente, signé Récits d’intérieurs.
Vous souhaitez rénover ou optimiser votre logement ? Vous avez un projet de construction ou d’achat en neuf et souhaitez des conseils pour aménager au mieux ces nouveaux volumes ?
Je vous propose d’en discuter lors d’un entretien découverte gratuit de 30 minutes :
Nous échangeons sur vos besoins et aspirations.
Je vous présente la formule la plus adaptée à votre situation.

75 rue du Coteau
74800 La Roche-sur-Foron
© Depuis 2006 KAREDESS - Création de sites internet à Annecy

